top of page

Create Your First Project

Start adding your projects to your portfolio. Click on "Manage Projects" to get started

Departamento Moliere

Tipo de proyecto

Arquitectura Interior

Fecha

2015

Ubicación

Miguel Hidalgo, Ciudad de México

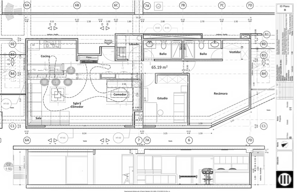
En 2015, bajo la dirección del arquitecto Elmer Moreno, emprendimos el reto de diseñar el interior de un departamento nuevo en la calle Moliere, en la zona de expansión de Polanco, Ciudad de México. El proyecto actualizó el espacio para reflejar la transformación y el dinamismo que han definido a esta zona en los últimos años.

La intervención arquitectónica interior se centró en crear una decoración que, a través del uso estratégico de la madera y el aluminio, brinda divisiones sutiles pero definidas con las distintas áreas del departamento. El diseño de interiores equilibró la sensación de apertura con una clara diferenciación entre la cocina, el pasillo y la zona de estar, destacando las vistas panorámicas de Polanco.

Un elemento destacado del proyecto fue el techo de Barrisol®, que amplifica la luminosidad y contribuye a una sensación de mayor altura en los espacios. Este detalle, combinado con la cuidadosa selección de materiales y mobiliario, aportó modernidad y funcionalidad al conjunto.

Con aproximadamente 65 m², el departamento se organizó de manera que incluyera una recámara, un estudio, dos baños, un vestidor principal y una zona de lavado. Una pieza clave en el proyecto fue el mobiliario, especialmente diseñado para cada espacio, desde la cocina hasta el recibidor, donde se ubicó un piano como un gesto hacia el glamour y sofisticación. Cada pieza fue documentada en planos técnicos detallados, lo que permitió al carpintero materializar estas ideas en auténticas obras funcionales y estéticas.

Una de las joyas fue la mesa de centro en la sala, inspirada en un juego de cubos de diferentes alturas, implementando la visión de Moreno para crear un elemento funcional que se convirtiera en el punto focal del diseño interior. El uso de modelos en tercera dimensión facilitó la visualización precisa de los detalles y la percepción del espacio, permitiendo a los clientes entender el diseño y realizar ajustes necesarios antes de la construcción. El mueble, junto con la extensa pieza de madera que divide la cocina de la zona de estar, demuestra la habilidad en el diseño de mobiliario y la atención en los detalles, como los herrajes, colores y acabados.

El proyecto manifiesta la posibilidad de transformar un espacio convencional en un contexto lujoso, donde cada elemento, desde los tonos cafés hasta las texturas de las telas, contribuye a crear un entorno exclusivo. Colaborar con Elmer Moreno en este proyecto reafirmó la versatilidad de la madera como un material que eleva la estética y la funcionalidad del espacio, aportando un valor duradero al propietario.

bottom of page