
Arquitecto Manuel Elihú Díaz
Create Your First Project
Start adding your projects to your portfolio. Click on "Manage Projects" to get started
Mobiliario Departamento Bosque Real Arquitecto Moreno
Tipo de proyecto
Diseño de mobiliario
Fecha
2008
Ubicación
Huixquilucan, Estado de México
Esta colección de diseño de mobiliario presenta piezas únicas creadas para adaptarse a diversos estilos de vida, con una atención precisa en cada aspecto del diseño. El catálogo resalta la ebanistería experta de nuestros carpinteros, que emplean materiales de alta calidad como madera, aluminio, cristal y luces LED compatibles con Matter. Cada mueble está diseñado tomando en cuenta medidas antropométricas para garantizar la ergonomía y el confort del usuario, asegurando su funcionalidad a lo largo del tiempo.
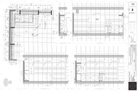
En 2008, colaboré con el arquitecto Elmer Moreno en el diseño interior de un lujoso departamento en Bosque Real, Huixquilucan. El diseño respondió al desafío de la forma curva del espacio, ubicado en un exclusivo complejo con terraza comunal, aprovechando cada rincón para lograr una distribución práctica y eficiente. Para resolverlo, se aplicó una retícula modular de 60x60 cm que permitió una transición fluida entre áreas públicas y privadas, mejorando la funcionalidad del espacio. La zona privada incluye recámaras amplias, una sala de TV y una recámara principal con vestidor y baño en suite.
Uno de los elementos más destacados del proyecto es la cantina, diseñada para albergar una colección de miles de botellas de tequila del propietario. Esta pieza se convirtió en el punto focal del departamento, equipada con iluminación LED y muebles de madera que equilibran funcionalidad y diseño estético. Las jardineras con magueyes y los vidrios esmerilados con motivos de agave complementan el espacio, celebrando la cultura del tequila mediante magueyes y vidrios esmerilados con motivos de agave.
El proyecto demuestra nuestra habilidad para crear escenarios de lujo y confort, integrando materiales de alta calidad y un diseño detallado que crea un ambiente equilibrado que combina elegancia y funcionalidad. Estos muebles, aunque representan una inversión significativa, están diseñados para perdurar y convertirse en piezas que trascienden generaciones. Ofrecemos renders y planos detallados para que los clientes puedan replicar estos diseños con su carpintero de confianza, elevando cualquier espacio con mobiliario premium, ideal para quienes valoran la calidad y el estilo en cada detalle.













